Il sistema Aluplast 4000 nelle varie versioni e opzioni
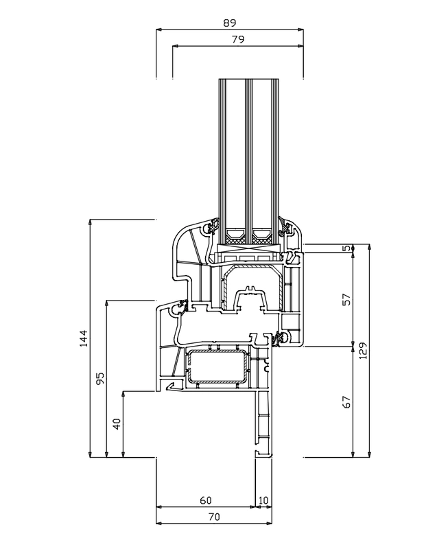
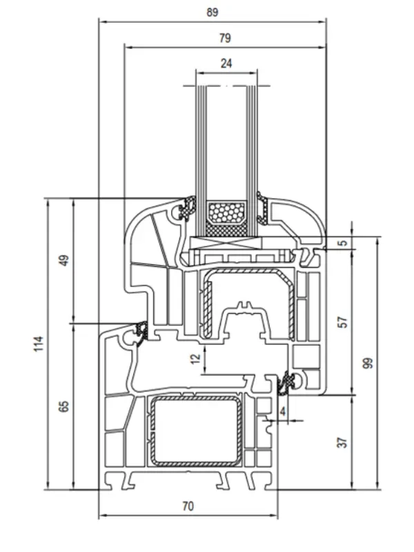
Serramenti PVC – Sistema di profili Ideal 4000 Round Line (stondato), Classic Line (squadrato) – Ideal 4000 nelle sue varie opzioni e versioni è un moderno sistema di profili per infissi in PVC a risparmio energetico, con forme arrotondate, o squadrate, di grande eleganza. Il 4000 Round ha 5 camere, con 70 mm di profondita’ e 2 guarnizioni esterne. Una caratteristica importante del sistema 4000 è la presenza di rinforzi in acciaio nelle grandi camere centrali del profilo, per garantire un’elevata stabilità dell’intero sistema. Tale sistema offre la possibilità di realizzare finestre di grandi dimensioni.
Infissi PVC Aluplast – Ideal 4000 Round Line
Il sistema Aluplast Ideal 4000 Round Line è uno dei profili più utilizzati in Europa per la produzione di finestre in PVC di ultima generazione, grazie al suo equilibrio tra prestazioni tecniche, affidabilità e possibilità estetiche. La struttura multicamera a 5 camere del telaio e dell’anta rappresenta il cuore del sistema: questo tipo di geometria permette di migliorare la resistenza al trasferimento di calore e di ottenere un livello di isolamento acustico superiore rispetto ai vecchi serramenti in alluminio non isolato o ai sistemi in legno con vetro singolo.
Isolamento termico e acustico reale
La configurazione a 5 camere, insieme ai vetri basso emissivi e ai distanziatori termici moderni, consente al sistema Ideal 4000 di raggiungere valori di trasmittanza Uw adeguati alle esigenze degli edifici situati in zone climatiche come la Lombardia (zona E secondo il DPR 412/1993).
Sebbene il valore Uw finale dipenda dal tipo di vetro installato, il sistema è progettato per funzionare in abbinamento a vetri doppi o tripli, offrendo un notevole incremento della temperatura superficiale interna del serramento e una percepibile riduzione della rumorosità esterna.
Guarnizioni e funzionalità a lungo termine
Il sistema utilizza guarnizioni in EPDM, un materiale ampiamente impiegato nei serramenti professionali per la sua resistenza ai raggi UV, alle variazioni di temperatura e all’invecchiamento. Le due guarnizioni fermavetro integrate nella linea Round Line rimangono visivamente discrete, contribuendo ad un design pulito e omogeneo.
Le guarnizioni in EPDM mantengono elasticità e tenuta negli anni, garantendo un corretto comportamento all’aria e alla pioggia battente, anche in presenza di condizioni climatiche difficili come quelle tipiche della Pianura Padana.
Evacuazione dell’acqua e manutenzione semplificata
Il telaio e l’anta presentano una inclinazione a 15°, una scelta progettuale che facilita il deflusso dell’acqua meteorica, riducendo il rischio di ristagni e prolungando la durata dei profili.
Le superfici lisce del PVC, unite ai rivestimenti antigraffio presenti in molte varianti del sistema, rendono la pulizia estremamente semplice anche in contesti urbani esposti allo smog o alle polveri industriali.
Sicurezza antieffrazione migliorata
Uno degli elementi tecnicamente più importanti del sistema Ideal 4000 è lo spostamento dell’asse della scanalatura della ferramenta a 13 mm dal bordo del telaio.
Questa caratteristica permette l’impiego di riscontri di sicurezza più larghi, aumentando la resistenza ai tentativi di scardinamento dell’anta. In abbinamento a ferramenta di qualità e a vetri stratificati di sicurezza, il sistema può raggiungere livelli di protezione anti-effrazione conformi alle classi previste dalle norme europee.
Design moderno e maggiore superficie vetrata
La versione Round Line si distingue per la geometria arrotondata e per una linea estetica più morbida, adatta ad ambienti moderni e ristrutturazioni contemporanee.
L’altezza ridotta dei profili dell’anta e del telaio consente di aumentare la superficie vetrata rispetto ai sistemi tradizionali, migliorando la luminosità degli ambienti e valorizzando anche finestre di piccole dimensioni. Questo è un vantaggio significativo soprattutto negli appartamenti degli anni ’60–’90, dove le aperture non sono sempre particolarmente ampie.
Varietà configurativa
Il sistema Ideal 4000 permette numerose varianti costruttive:
- aperture a battente
- anta-ribalta
- combinazioni con sopraluce
- finestre a più ante
- soluzioni con rivestimento effetto legno o colori RAL.
L’ampia scelta rende il sistema adatto sia a contesti residenziali sia a edifici commerciali o uffici.
Prezzi indicativi dei serramenti Aluplast Ideal 4000
I prezzi variano in base alle dimensioni, al tipo di vetro, ai rinforzi, al colore e alla complessità della posa.
Puoi consultare una panoramica dettagliata delle fasce di costo nella nostra guida aggiornata: Prezzi serramenti e infissi in PVC
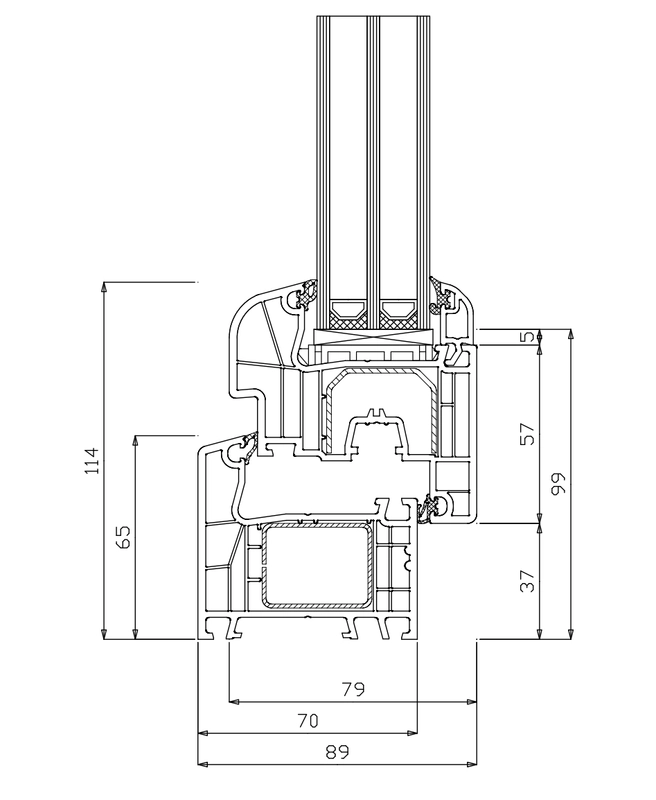
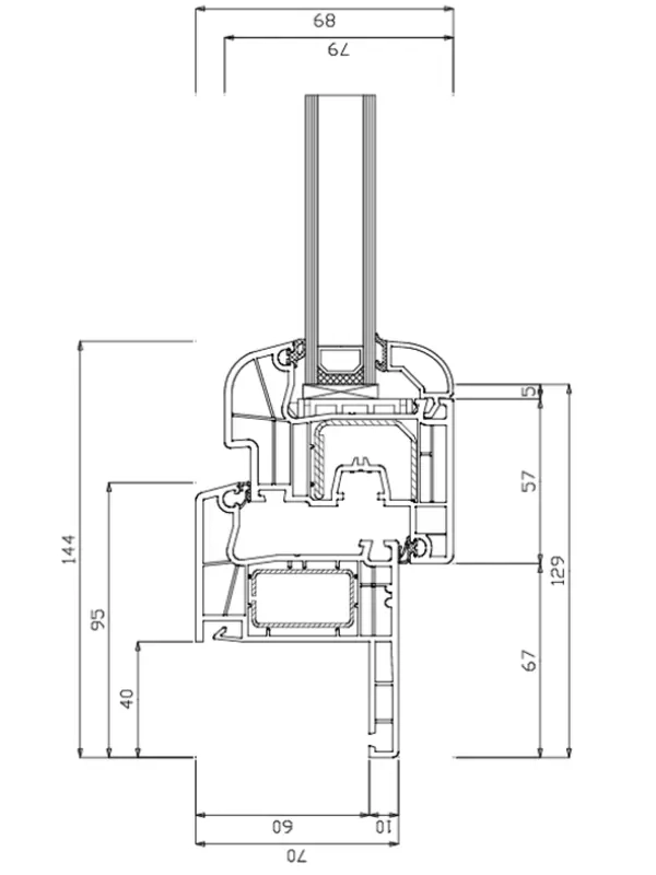
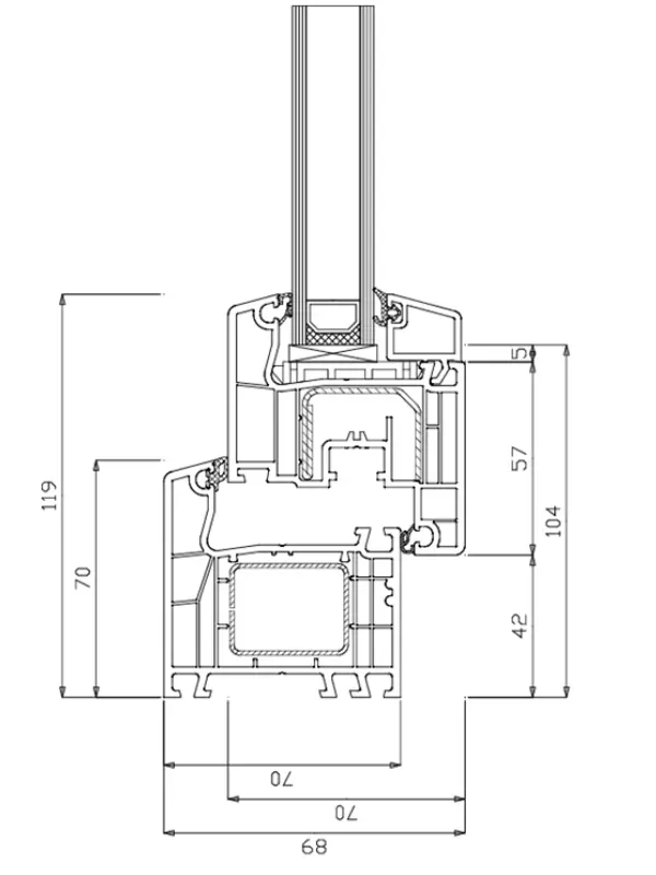
Le sezioni dei profili
Cosa dicono i nostri clienti sui profili Aluplast
Scegliere i serramenti giusti significa investire nel comfort, nella sicurezza e nell’efficienza energetica della propria casa. Per questo, oltre alle schede tecniche dei profili Aluplast, ti invitiamo a conoscere le esperienze dirette delle persone che li hanno già installati tramite la nostra azienda.
Nella sezione dedicata alle recensioni trovi opinioni autentiche, lasciate dai nostri clienti dopo l’acquisto e l’installazione degli infissi Aluplast. Le loro testimonianze offrono una visione concreta sul comportamento reale delle finestre nel tempo: isolamento termico, prestazioni acustiche, solidità dei materiali e qualità del montaggio.
Se desideri valutare i profili Aluplast con piena consapevolezza, scopri cosa ne pensano i nostri clienti →
