Il sistema Aliplast Visoglide Plus è stato progettato per offrire la massima eleganza e funzionalità nelle porte scorrevoli in alluminio.
Grazie alle sue caratteristiche costruttive e al design sottile, consente di creare ampie vetrate con profili minimali, ideali per edifici moderni e luminosi.
Visoglide Plus combina estetica raffinata e prestazioni tecniche elevate, garantendo un ottimo isolamento termico e una perfetta fluidità di movimento.
Caratteristiche del sistema Visoglide Plus
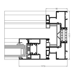
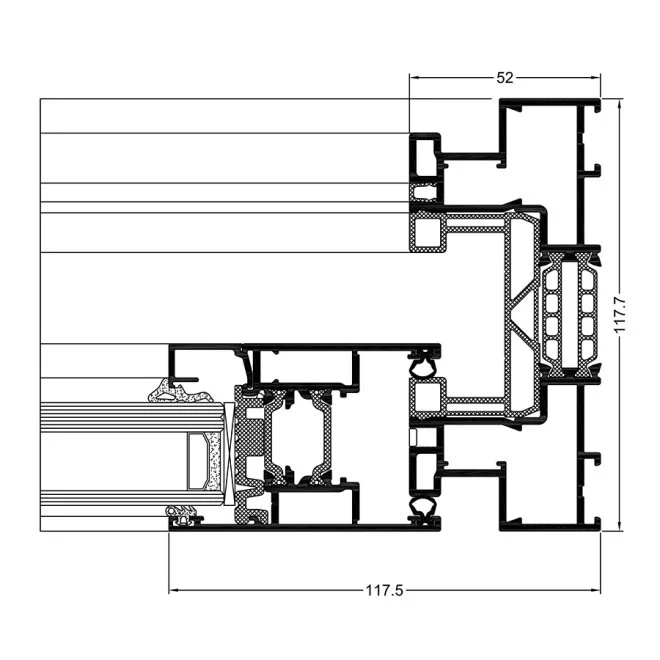
Il sistema è composto da profili in alluminio con profondità del telaio di 118, 142 o 184 mm e anta di 51 mm.
Le opzioni di riempimento variano da 6 a 36 mm, con la versione Monorail che permette spessori fino a 60 mm.
Le ante possono raggiungere un peso massimo di 250 kg per la versione scorrevole e 200 kg per quella alzante-scorrevole.
Queste caratteristiche rendono Visoglide Plus ideale per soluzioni abitative e commerciali che richiedono ampie aperture, stabilità e comfort d’uso nel tempo.
Prestazioni tecniche
Il sistema garantisce un coefficiente di trasmittanza termica Uf da 2,1 W/m²K, assicurando un buon isolamento termico, ulteriormente migliorabile attraverso l’uso di vetri performanti.
La permeabilità all’aria raggiunge la Classe 4 secondo la norma PN-EN 12207, mentre la resistenza al carico del vento è classificata come Classe C3/B4 (1200 Pa).
L’impermeabilità all’acqua si colloca in Classe 9A, garantendo protezione anche in condizioni atmosferiche avverse.
Questi parametri confermano Visoglide Plus come una soluzione affidabile per porte scorrevoli in alluminio destinate a un utilizzo intensivo.
Design e funzionalità
Una delle principali caratteristiche di Visoglide Plus è la colonna labirintica estremamente sottile, larga appena 34 mm, che permette di aumentare la superficie vetrata e la quantità di luce naturale negli ambienti.
Il sistema supporta diverse configurazioni: scorrevoli, alzanti-scorrevoli e monorail, con combinazioni a due, tre, quattro o sei ante.
Inoltre, la soglia ribassata facilita il passaggio, migliorando l’accessibilità senza compromettere le prestazioni di tenuta.
Le guide e i carrelli di alta qualità assicurano un movimento fluido e silenzioso anche in presenza di ante di grandi dimensioni.
Finiture e personalizzazione
Visoglide Plus è disponibile in un’ampia varietà di finiture: palette RAL, colori strutturali, Wood Colour Effect con effetto legno, Loft View effetto pietra e versioni anodizzate.
La possibilità di personalizzare il colore interno ed esterno consente di integrare armoniosamente le porte scorrevoli con lo stile dell’edificio.
Inoltre, il design minimalista e i profili sottili contribuiscono a creare ambienti luminosi, eleganti e dal forte impatto visivo.
In sintesi
Il sistema Aliplast Visoglide Plus rappresenta una soluzione moderna e versatile per chi desidera serramenti in alluminio scorrevoli dal design raffinato e prestazioni affidabili.
Offre un perfetto equilibrio tra estetica, comfort e tecnologia, adattandosi sia a progetti residenziali di pregio che a strutture commerciali contemporanee.
Specificazione del prodotto
| Sistema | Materiale | Profond. telaio | Profond. anta | Spess. riempimento | Peso anta | Tipo porta |
|---|---|---|---|---|---|---|
| VG Plus finestra | alluminio / materiale isolante | 118/142/184 mm | 51 mm | 6-36 mm; opzione monorail: 18-60 mm | fino a 250 kg per opzione scorrevole, fino a 200 kg per opzione alzante-scorrevole | scorrevole, alzante-scorrevole |
Caratteristiche tecniche
| Sistema | Isolamento termico UF* | Perm. all’aria | Carico vento | Impermeab. acqua |
|---|---|---|---|---|
| VG Plus finestra | Uf da 2,1 W/m²K | Classe 4; PN-EN 12207 | Classe C3/B4 (1200 Pa); PN-EN 12210 | Classe 9A; PN-EN 12208 |
