Il sistema Aliplast Ultraglide rappresenta la soluzione ideale per chi desidera realizzare porte e finestre scorrevoli in alluminio di grandi dimensioni, con eccellenti prestazioni termiche e un’estetica moderna. Grazie alla sua struttura robusta e ai materiali isolanti di ultima generazione, il sistema garantisce stabilità, leggerezza e comfort abitativo. Inoltre, le ampie superfici vetrate offerte da Ultraglide permettono una luminosità naturale superiore, mantenendo al tempo stesso un alto livello di isolamento termico e acustico.
Caratteristiche del sistema Ultraglide
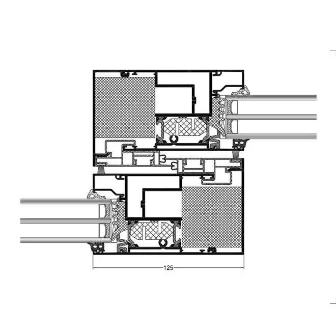
Il sistema è realizzato con profili in alluminio a taglio termico con profondità del telaio compresa tra 153 mm e 239 mm e profondità dell’anta pari a 67 mm.
Le versioni UG e UG i+ consentono l’inserimento di vetri o pannelli di riempimento con spessore da 14 a 52 mm e supportano ante dal peso fino a 400 kg.
Questa solidità strutturale permette di realizzare porte scorrevoli e alzanti-scorrevoli di dimensioni molto ampie, mantenendo una movimentazione fluida e silenziosa.
Per questo motivo, il sistema Ultraglide è particolarmente apprezzato in edifici moderni con ampie aperture verso terrazze e giardini.
Prestazioni tecniche
Ultraglide offre ottimi valori di isolamento termico con Uf fino a 1,13 W/m²K nella versione i+, assicurando risparmio energetico e comfort in ogni stagione.
La permeabilità all’aria è classificata in Classe 4 secondo la norma PN-EN 12207, mentre la resistenza al carico del vento raggiunge la Classe C4 (1600 Pa).
Inoltre, il sistema garantisce un’impermeabilità all’acqua fino a Classe 9A (600 Pa).
Queste prestazioni, unite a un’ottima insonorizzazione fino a 43 dB, rendono il sistema perfetto per edifici residenziali e commerciali che richiedono efficienza, estetica e comfort acustico.
Design e possibilità costruttive
Ultraglide è disponibile in diverse configurazioni: scorrevole tradizionale, alzante-scorrevole e con soglia ribassata per un accesso facilitato.
Le combinazioni a due, tre o quattro ante consentono grande libertà progettuale, adattandosi sia a spazi abitativi che commerciali.
Le dimensioni massime raggiungono H 3300 mm in altezza e L 3200 mm in larghezza per anta, mantenendo sempre la massima stabilità e sicurezza.
Inoltre, il sistema può essere motorizzato, integrandosi facilmente con soluzioni di domotica.
Finiture e personalizzazione
Come tutti i sistemi Aliplast, anche Ultraglide offre un’ampia gamma di finiture: colori della palette RAL, tinte strutturali, Wood Colour Effect effetto legno, Loft View effetto pietra e versioni anodizzate.
La possibilità di scegliere tra superfici lucide, satinate o opache consente di creare porte scorrevoli in alluminio dal design contemporaneo, perfettamente coordinate con lo stile dell’edificio.
Inoltre, la versione bicolore permette di differenziare il colore interno da quello esterno, offrendo la massima libertà estetica.
In sintesi
Il sistema Aliplast Ultraglide unisce tecnologia, comfort e bellezza architettonica.
Offre eccellenti prestazioni di isolamento termico e acustico, facilità d’uso e un design minimalista ideale per grandi superfici vetrate.
È la scelta perfetta per chi cerca profili in alluminio di alta qualità per porte e finestre scorrevoli in edifici moderni e luminosi.
Specificazione del prodotto
| Sistema | Materiale | Profond. telaio | Profond. anta | Spess. riempimento | Peso anta | Acustica | Tipo porta |
|---|---|---|---|---|---|---|---|
| UG finestra | alluminio / materiale isolante | da 153 mm a 239 mm | 67 mm | anta 14-52 mm | fino a 400 kg | 43 (-2,-6) dB | scorrevole, alzante-scorrevole |
| UG i+ finestra | alluminio / materiale isolante | da 153 mm a 239 mm | 67 mm | anta 14-52 mm | fino a 400 kg | 43 (-2,-6) dB | scorrevole, alzante-scorrevole |
Caratteristiche tecniche
| Sistema | Isolamento termico UF* | Perm. all’aria | Carico vento | Impermeab. acqua |
|---|---|---|---|---|
| UG finestra | Uf da 1,45 W/m²K | Classe 4; PN-EN 12207 | Classe C4 (1600 Pa); PN-EN 12210 | Classe 9A (600 Pa); PN-EN 12208 |
| UG i+ finestra | Uf da 1,13 W/m²K | Classe 4; PN-EN 12207 | Classe C4 (1600 Pa); PN-EN 12210 | Classe 9A (600 Pa); PN-EN 12208 |
