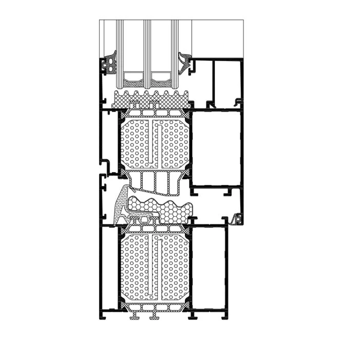
Il sistema di profili Aliplast Genesis 75 rappresenta una delle soluzioni più avanzate per la realizzazione di serramenti in alluminio moderni, eleganti e altamente performanti. Grazie alla sua struttura a tre camere e ai materiali isolanti di nuova generazione, questo sistema garantisce eccellenti parametri di isolamento termico e acustico.
Infatti, Genesis 75 è stato progettato per soddisfare gli standard energetici più recenti, offrendo comfort e risparmio sia in edifici pubblici che residenziali.
Inoltre, le sue linee sottili e il design contemporaneo rendono le finestre e le porte perfettamente integrabili in ogni tipo di architettura.
Caratteristiche del sistema Genesis 75
La base del sistema è costituita da profili con una profondità di 75 mm nel telaio e 84 mm nell’anta finestra. Questa struttura a tre camere consente di ottenere un coefficiente di trasmittanza termica Uf fino a 0,76 W/m²K nella versione i+, garantendo un isolamento ai massimi livelli.
Inoltre, le guarnizioni termiche aggiuntive assicurano una tenuta eccezionale contro infiltrazioni d’aria e acqua, anche in condizioni climatiche difficili.
Grazie a queste caratteristiche, Genesis 75 stabilisce un nuovo standard di efficienza energetica per serramenti in alluminio di alta qualità.
Prestazioni tecniche
Il sistema Genesis 75 è conforme alle normative europee in materia di permeabilità all’aria (Classe 4 – PN-EN 12207), resistenza al carico del vento (Classe E2400) e impermeabilità all’acqua (Classe E1800–E1950). Questi parametri assicurano prestazioni affidabili e costanti nel tempo, anche in ambienti con elevata esposizione agli agenti atmosferici. Inoltre, l’elevata insonorizzazione fino a 45 dB rende il sistema ideale per contesti urbani e residenziali ad alta densità.
Applicazioni e tipologie
Il sistema GN 75 finestra è pensato per pareti, finestre fisse e a battente basculante, mentre GN 75 porta si adatta a porte singole o a doppia anta, con apertura interna o esterna.
Le versioni i+ offrono un isolamento termico potenziato, perfetto per edifici a basso consumo energetico.
Grazie alla versatilità dei profili Aliplast, è possibile realizzare soluzioni personalizzate per ogni esigenza estetica e funzionale.
Design e finiture
Oltre alle prestazioni, Genesis 75 si distingue per il suo design raffinato e per l’ampia gamma di finiture disponibili: palette RAL, colori strutturali, effetto legno Aliplast Wood Colour Effect, superfici tipo pietra Loft View e versioni anodizzate.
Questa varietà consente di creare finestre e porte in alluminio perfettamente coordinate con lo stile dell’edificio, combinando estetica e tecnologia.
Inoltre, la possibilità di utilizzare profili per ristrutturazioni rende il sistema ideale anche per interventi su edifici esistenti.
In sintesi
Il sistema Aliplast Genesis 75 unisce innovazione, efficienza e design in un’unica soluzione. Offre un isolamento termico di ultima generazione, un’elevata resistenza e una lunga durata nel tempo. Per questo motivo è oggi una delle scelte più apprezzate tra i professionisti che cercano profili in alluminio di alta qualità per serramenti moderni.
Specificazione del prodotto
| Sistema | Materiale | Profond. telaio | Profond. anta | Spess. riempimento | Acustica | Tipo finestra | Tipo porta |
|---|---|---|---|---|---|---|---|
| GN 75 finestra | alluminio / materiale isolante | 75 mm | 84 mm | fix 1 – 56 mm / 9-65 mm | 45 (-1,-3) dB | pareti, finestre fisse, a battente basculante | − |
| GN 75 porta | alluminio/poliammide | 75 mm | 75 mm | 1 – 59 mm | 44 (-1,-4) dB | − | singola, doppia anta, apertura esterna, apertura interna, porte antipanico |
Caratteristiche tecniche
| Sistema | Isolamento termico UF* | Perm. all’aria | Carico vento | Impermeab. acqua |
|---|---|---|---|---|
| GN 75 finestra | Uf da 1,35 W/m²K | Classe 4; PN-EN 12207 | Classe E2400 (2400 Pa); PN-EN 12210 | Classe E1800 (1800Pa)/E1950* (1950 Pa); PN-EN 12208 |
| GN 75 i+ finestra | Uf da 0,76 W/m²K | Classe 4; PN-EN 12207 | Classe E2400 (2400 Pa); PN-EN 12210 | Classe E1800 (1800Pa)/E1950* (1950 Pa); PN-EN 12208 |
| GN 75 porta | Uf da 1,625 W/m²K | Classe 4; PN-EN 12207 | Classe C5 (2000Pa); PN-EN 12210 | Classe E1200 (1200Pa); PN-EN 12208 |
| GN 75 i+ porta | Uf da 1,195 W/m²K | Classe 4; PN-EN 12207 | Classe C5 (2000Pa); PN-EN 12210 | Classe E1200 (1200Pa); PN-EN 12208 |
